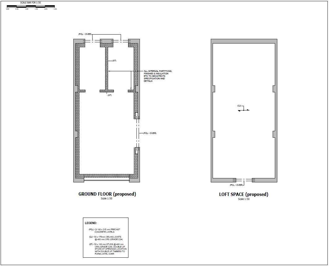
Simple garage conversion, where we retained the existing external walls, just reinforced the openings with lintels above, and designed new ceiling joists in the loft, which will be used as a storage area. Easy to build, with minimal funds invested our client got an additional lounge & gaming room outside of the existing house.