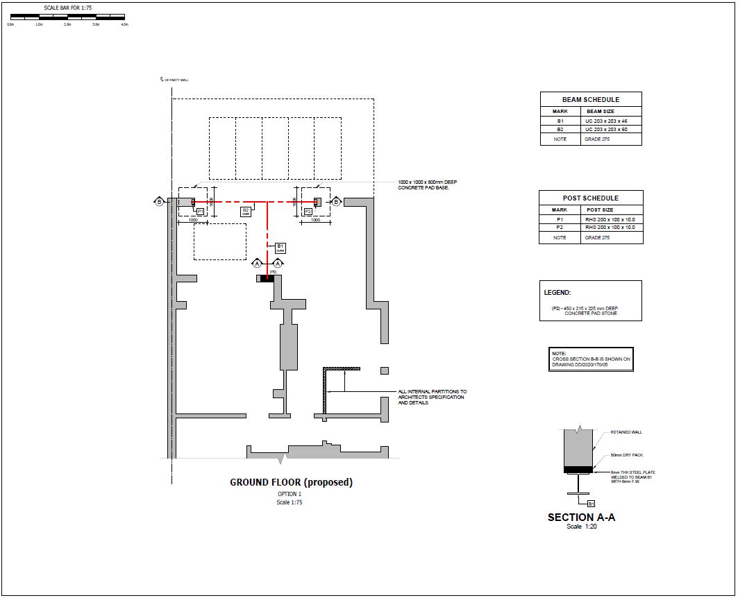
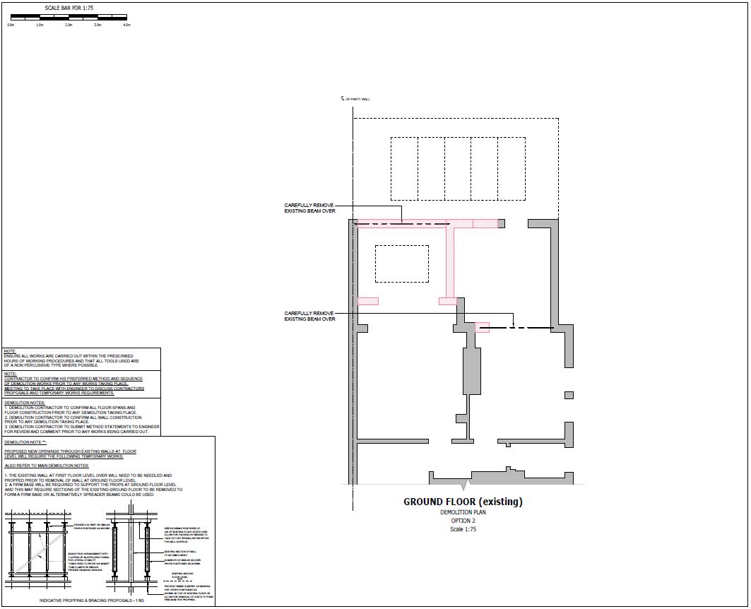
In this project the client had already done a rear extension, but needed to open the space between the house and the extension in order to achieve a bigger kitchen & dining room. For that, bearing walls needed to be demolished and a goal post was designed. Unlike the steel box frame, the bottom beam is omitted in this case and the posts are bolted in new foundations. Another beam was proposed to support the internal wall and the floor joists on first floor, which was supported by the goal post beam. Connection between the beams was detailed as well as connections between the posts and the beam, and posts with the concrete foundation. Two options were given so the client can decide the amount of work and funds he is willing to invest in this home refurbishment.